Athenaeum
Fall 2015 // University of Cincinnati
Professor: Ming Tang
Location: Cincinnati, OH
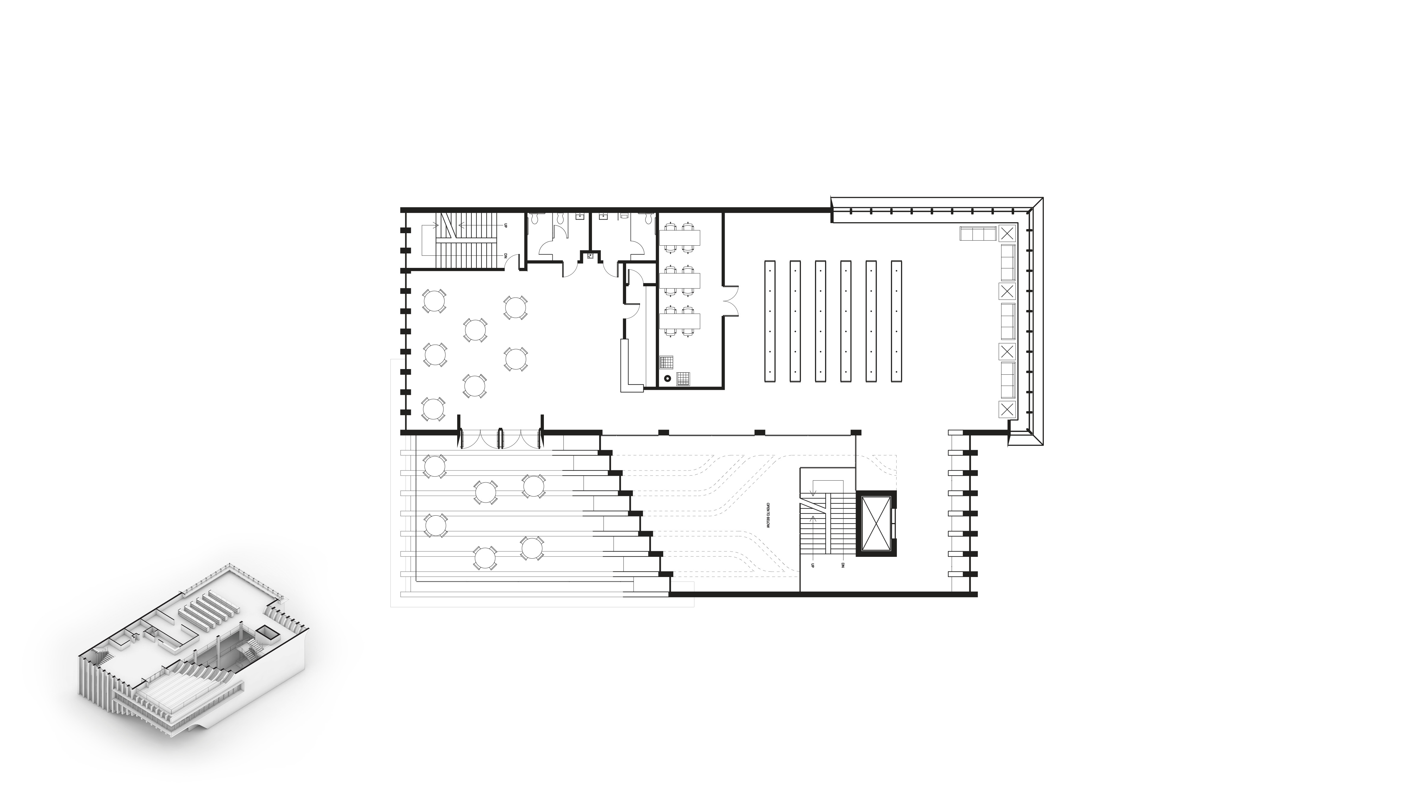
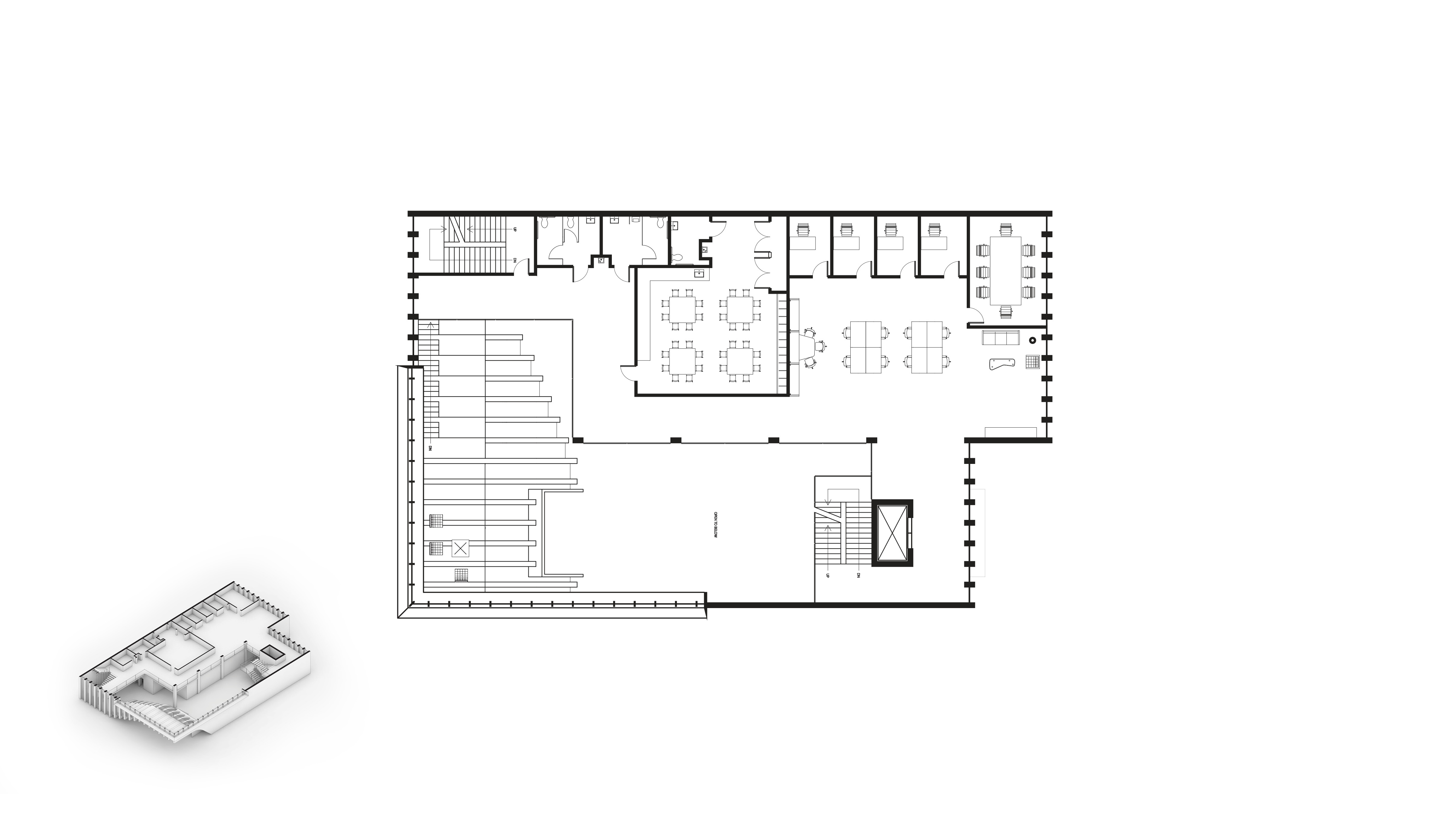
Located on a site in Cincinnati’s Over the Rhine neighborhood, the Athenaeum serves as a cultural center that is able to activate the local community. The site is 80’ x 120’ and near the intersection of Court and Race Street. The building’s dense program includes two galleries, a library, an auditorium, and office work space. Through an iterative massing study exploring the program requirements and pedestrian interaction, the building’s form takes cues from scale the immediate context. Its undulalating shape adjusts to align with neighboring rooflines while its enterance threshold responds to pedestrian and vehicular activity. This undulation is a datum that moves rhythmically through the building, becoming its primary formal expression. It also denotes change in the building’s different functional spaces, defining public and private realms while maintaining a consistant language. The only interuption of this striping pattern occurs at points intended to capture vistas or to mark entry portals into the building.






